防爆空调设备主要是在国内外品牌机的基础上采用特殊的工艺处理方法和制造方法进行防爆处理,保证空调机满足现场防爆使用要求。华荣防爆ATEX认证防爆空调BKF(R)系列产品为分体壁挂式防爆空调,外形尺寸与普通挂式室内机的外形尺寸和安装方式大致相同,输入功率2P或3P可选,适用于20㎡~50㎡左右有温控要求的车间、控制室、实验室等场所。
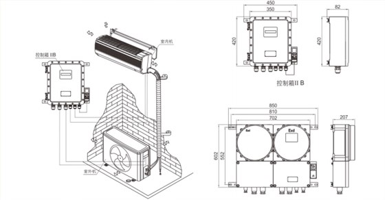
该系列产品按功能分为有单冷型和冷暖型,主要由防爆室内机、防爆室外机、防爆控制箱三大部分组成。室外机主要采用特殊工艺处理方法和制造方法对内部电器控制部分、压缩机、室外风机、保护系统、散热系统、制冷系统行防爆处理;室内机:主要是采用特殊工艺处理方法和制造方法对内部电器控制部分解体后,重新进行防爆设计、制造处理,形成独立的防控制箱,并实现手动控制功能;其中弱电控制部分采用了本安型防爆电路,分体壁挂式防爆空调的遥控器直接固定在室内机的防爆控制箱上。
BKF(R)系列分体壁挂式防爆空调适用于ⅡA、ⅡB、ⅡC类爆炸性气体环境1区、2区场所,是易燃易爆气体环境调节温度的最佳选择,联系电话010-56358656。华荣防爆国际认证防爆空调制冷、制热性能稳定,品质可靠,使用寿命长,欢迎咨询订购!

防爆控制箱
防爆扩音通讯系统
防爆红外热像仪
防爆高温内窥式摄像系统